中古一戸建て 諏訪郡富士見町富士見
所在地
諏訪郡富士見町富士見
2,380万円
38.38坪
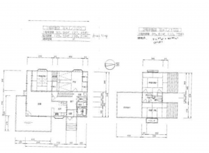
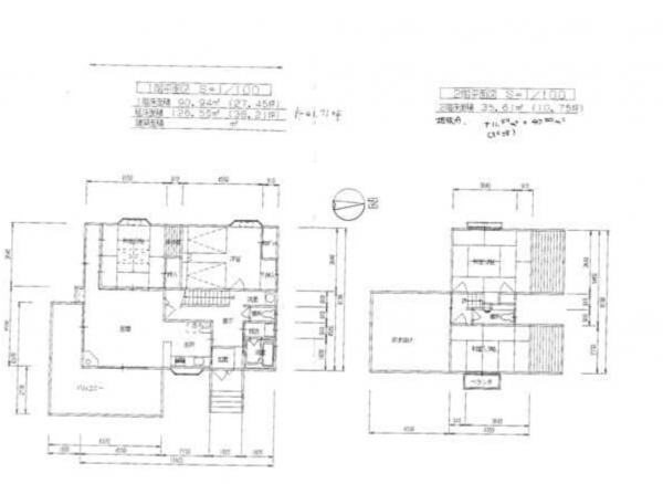
富士見町富士見の中古別荘(4LDK・木造2階建)です。
土地広々562坪、建物38坪で森に囲まれた静かな環境。天窓のある明るいリビング、IHキッチン、薪ストーブ完備で四季を通じて快適に過ごせます。
敷地内には湧水や山草もあります。首都圏からの二拠点生活や自然豊かなリゾートライフに最適です。
西友富士見店 車:6分(3000m)
セブン-イレブン 富士見町富士見店 車:4分(1800m)
JA長野厚生連 富士見高原医療福祉センター 富士見高原病院 車:7分(3100m)
若宮簡易郵便局 徒歩:6分(390m)
諏訪信用金庫 富士見支店 車:5分(2100m)
物件概要
- 交通
-
中央線
- 接道状況
- 南側 公道
- 土地面積
- 公簿 1858.47㎡ (562.18坪)
- 建物面積
- 126.90㎡ (38.38坪)
- 築年数
- 建ぺい率
- 容積率
- 土地権利
- 所有権
- 構造および階数
- 木造
- 小学校区
- 富士見 ( 1800m )
- 中学校区
- 富士見 ( 2600m )
- 私道負担
- 地目
- 現況
- 引渡時期
- 駐車場
- 上水道
- 下水道
- ガス
- 都市計画
- 用途地域
- 設備・条件
- 備考
- 取引態様
- 仲介


